| Kód nemovitosti | CQ-WI-79272 |
|---|---|
| Lokalita | Costa Blanca Jih |
| Typ | Pozemek |
| Stav | použité |
| Cena | €135,000 |
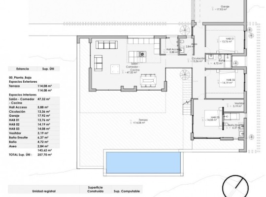
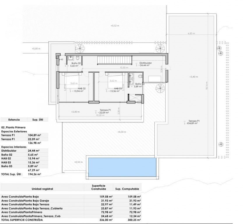
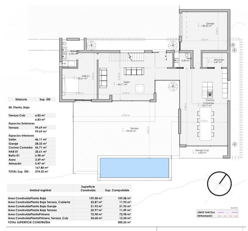
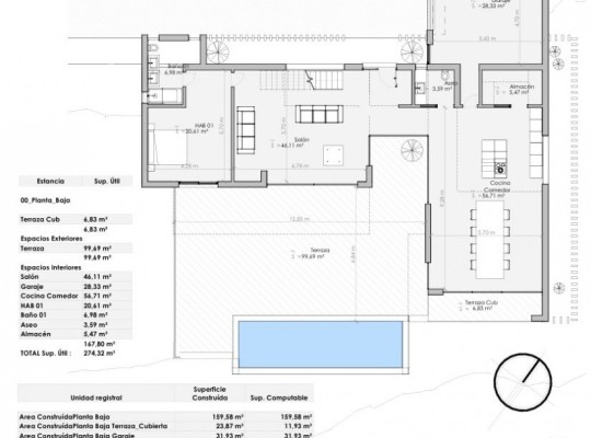
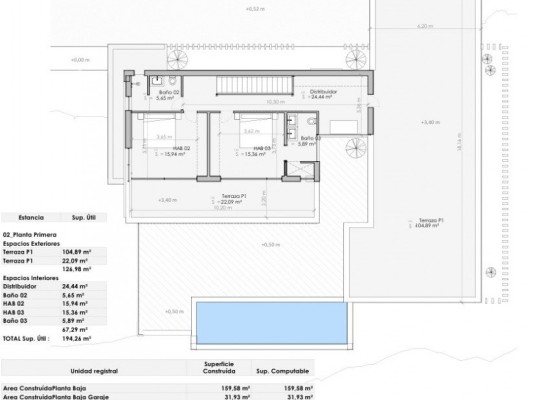
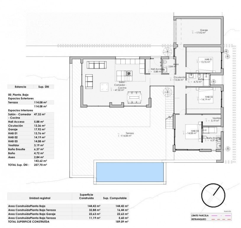
- Pozemek: 16000 m2
- Bazén: ne
Popis nemovitosti
Objevte svůj vysněný pozemek – čekají na vás nekonečné možnosti! Tento rozlehlý pozemek o rozloze 16 000 m², zasazený v idylickém prostředí, nabízí perfektní půdu pro realizaci vašeho vysněného domova. S výjimečnou stavební tolerancí 2 % si můžete navrhnout a postavit úžasnou vilu o rozloze přibližně 325 m² – skutečný oázu luxusu, prostoru a klidu. Ať už si představujete moderní architektonické mistrovské dílo, klasickou vilu nebo venkovské útočiště, tento pozemek uspokojí vaši fantazii. Vyberte si ze dvou předpřipravených stavebních možností přizpůsobených tak, aby maximalizovaly potenciál tohoto mimořádného místa, nebo si pozemek kupte samostatně a nechte svou kreativitu vzlétnout s projektem na míru. Proč je tento pozemek pro vás ideální: Velikost a soukromí: 16 000 m² zajišťuje dostatek prostoru pro bujnou krajinářskou architekturu, venkovní rekreační plochy a naprosté soukromí. Flexibilita: Zvolte si stavební projekt na klíč nebo začněte od nuly s vlastní vizí. Prvotřídní investice: Jedinečná příležitost ve vyhledávané lokalitě, která nabízí klid i růst hodnoty. Toto je více než jen pozemek; je to pozvánka k vytvoření životního stylu, který dokonale odráží vaše aspirace. Nenechte si ujít šanci postavit si vysněnou vilu nebo si zajistit cenný pozemek na výborném místě. Kontaktujte nás ještě dnes a dozvíte se více nebo si domluvte prohlídku. Váš vysněný domov začíná zde!
