| Kód nemovitosti | CQ-00-66679 |
|---|---|
| Lokalita | Costa Blanca(Alicante) - přeprodej - starší nemovitosti |
| Typ | Dům |
| Stav | nové |
| Cena | €361,500 |
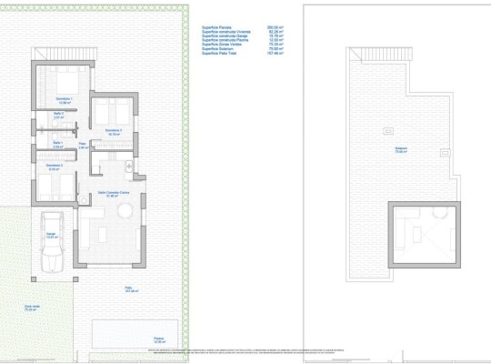
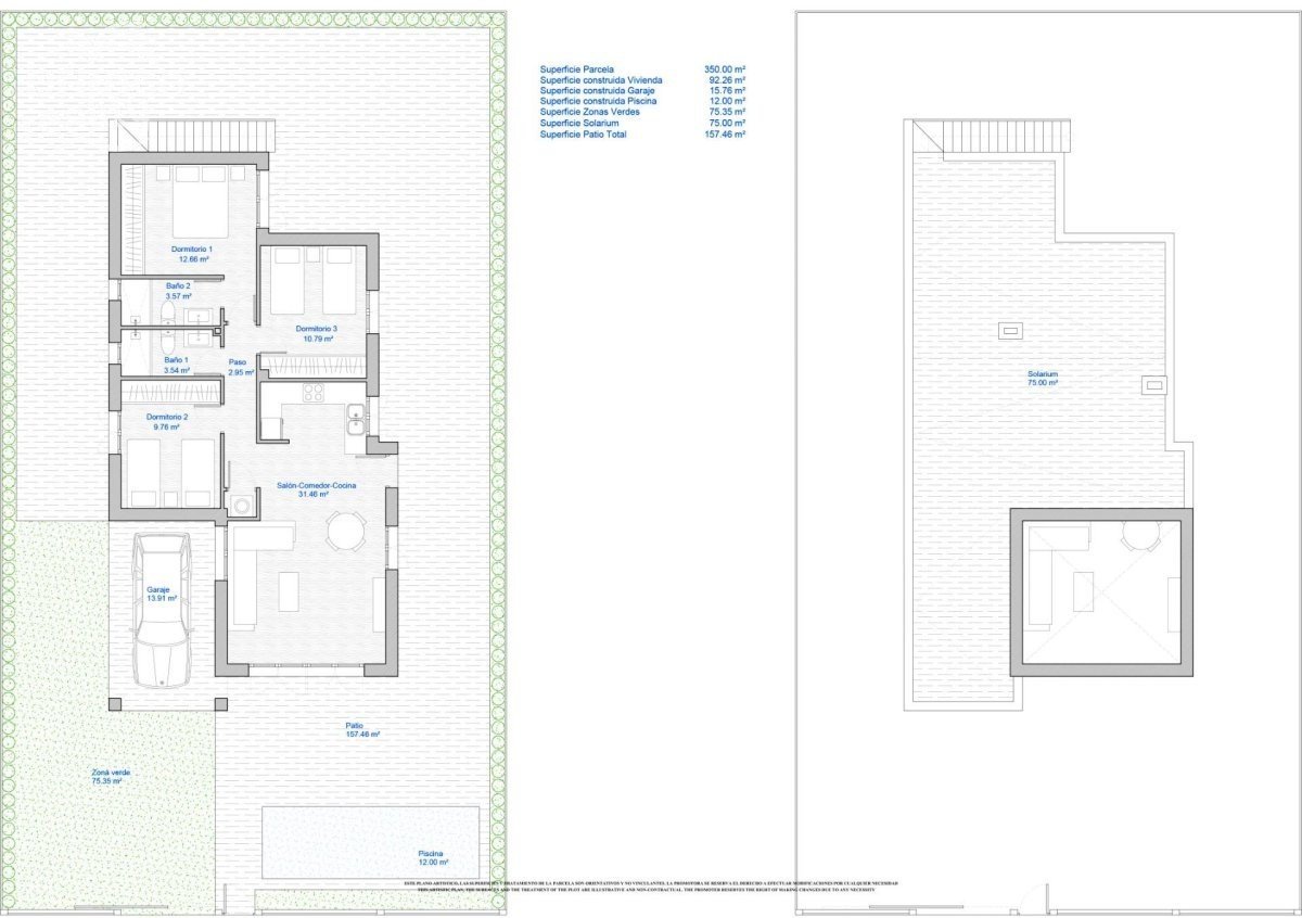
- Obytná plocha: 108 m2
- Pozemek: 350 m2
- 3
- 2
- Bazén: ne
Popis nemovitosti
NOVOSTAVBA VILY V LOS ALCAZARES Novostavba samostatně stojící vily na velkorysém pozemku o rozloze 350 m2 v Los Alcazares. Vila se 3 ložnicemi a 2 koupelnami, otevřenou kuchyní s obývacím pokojem, vestavěnými skříněmi, soláriem, soukromou zahradou s parkovacím místem mimo ulici a místem pro bazén. Možnost soukromého bazénu za příplatek. Prostorný obývací pokoj má velké posuvné dveře na terasu. Rozsáhlé terasy vpředu i vzadu zajišťují, že se majitelé mohou opalovat po celý den. Tyto vily mají moderní vybavené kuchyně s výběrem barev kuchyňských linek a obkladů v kuchyních i koupelnách, podlah a teras. Rezidenční vila se nachází 1 km od pláže a města Los Alcázares, kde se můžete věnovat různým vodním sportům, je obklopeno několika golfovými hřišti. Město Cartagena je vzdálené necelých 15 minut jízdy autem a 30 minut od letiště Murcia Corvera.
- Zahrada
- Uzavřeno
- Počet parkovacích míst: 1
- Pláž: 1000 metrů
- Nemovitost v blízkosti golfového hřiště / golfového resortu
- Blízko autobusové trasy
- Blízko obchodního centra
- Poloha: Pobřežní
- Užitná plocha budovy: 95 m².
- Parkování - Místo
- Dvoulůžkové pokoje: 3
- Solárium: Ano
- Klimatizace: Předinstalovaná
- Terasa: 105 m²
