| Kód nemovitosti | CQ-00-76181 |
|---|---|
| Lokalita | Costa Blanca(Alicante) - přeprodej - starší nemovitosti |
| Typ | Dům |
| Stav | nové |
| Cena | €280,000 |
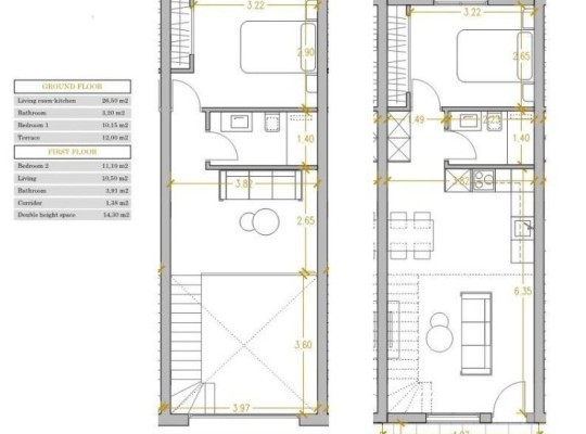
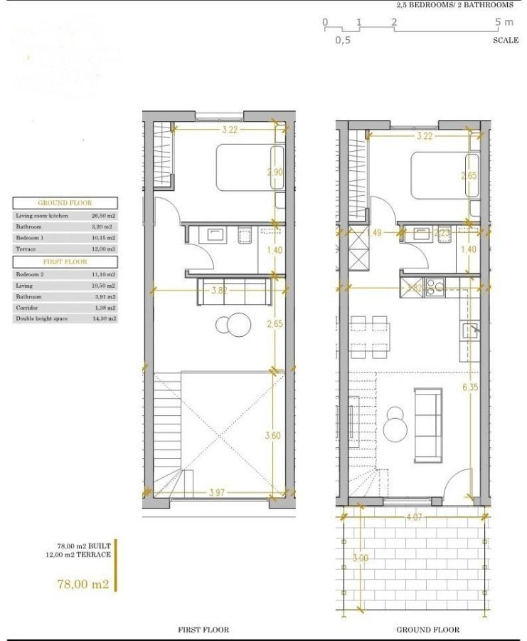
- Obytná plocha: 93 m2
- 2
- 2
- Bazén: ano
Popis nemovitosti
Exkluzivní nový rezidenční komplex v Orihuela Costa Výhodná poloha v srdci Costa Blanca Tento moderní uzavřený rezidenční komplex se nachází v Orihuela Costa, jedné z nejvyhledávanějších oblastí Costa Blanca, pouhé 4 km od pláží Orihuela Costa. Jeho vynikající poloha vám umožní užívat si středomořského slunce po celý rok s přístupem k široké škále volnočasových aktivit, golfu a služeb. Pouhých 5 minut jízdy autem najdete golfové hřiště Villamartin a nákupní centrum La Zenia Boulevard, největší v provincii Alicante, s více než 150 obchody, restauracemi a zábavními oblastmi. Moderní design a exkluzivní domy Tento developerský projekt nabízí výběr nově postavených domů navržených podle nejvyšších standardů kvality a pohodlí: 7 řadových domů se 2 a 3 ložnicemi s přístupem ke společnému bazénu. 2 samostatné vily se 3 ložnicemi a 3 koupelnami, každá se soukromým bazénem. Volitelně: podzemní parkovací stání a úložné prostory za příplatek. Exkluzivní vlastnosti a vlastnosti Každá nemovitost byla navržena s moderním a funkčním přístupem, včetně: Upravené exteriéry s umělou trávou vedle bazénu. Aerotermální vytápění pro vyšší energetickou účinnost. Kuchyně s křemenným barovým pultem, posezením a kovovým umyvadlem o průměru 50 cm. Schodiště se skleněným a nerezovým madlem. Plně vybavené koupelny se závěsnými skříňkami, zrcadlem a sprchovou zástěnou. Předinstalace pro klimatizaci s potrubím. Vestavěné skříně v každé ložnici s posuvnými dveřmi a systémem tichého zavírání. Bezpečnostní vstupní dveře pro klid. Blízkost zajímavých míst Pláž Punta Prima - 4 km. Golfové hřiště Villamartin - 5 km. Nákupní centrum La Zenia Boulevard - 5 km. Centrum města Torrevieja - 10 km. Letiště Alicante - 40 minut. Letiště Murcia-Corvera - 1 hodina. Zažijte středomořský životní styl Tento exkluzivní rezidenční komplex je ideální pro ty, kteří hledají moderní bydlení na pobřeží Costa Blanca s přístupem na pláže, golf a veškeré vybavení. Nenechte si ujít tuto jedinečnou příležitost a kontaktujte nás ještě dnes pro více informací nebo pro domluvení prohlídky.
- Společný bazén
- V blízkosti škol
- Uzavřeno
- Nemovitost v blízkosti golfového hřiště / golfového resortu
- Blízko autobusové trasy
- Blízko obchodního centra
- Poloha: Pobřežní, Urbanizace
- Pláž: 3500 metrů
- Užitečná plocha budovy: 82 m².
- Parkování - Místo
- Dvoulůžkové pokoje: 2
- Klimatizace: Předinstalovaná
- Terasa: 12 m²
