| Kód nemovitosti | CQ-00-33726 |
|---|---|
| Lokalita | Costa Blanca Jih |
| Typ | Apartmán |
| Stav | nové |
| Cena | €175,000 |
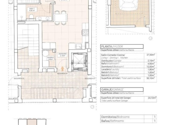
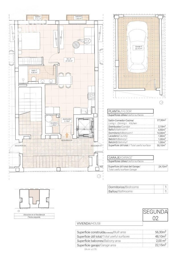
- Obytná plocha: 56 m2
- 1
- 1
- Bazén: ne
Popis nemovitosti
Moderní apartmány s úchvatným výhledem na vinice v Hondón de las Nieves Stylové novostavby apartmánů v klidném údolí Objevte tyto moderní apartmány v Hondón de las Nieves, okouzlujícím městečku zasazeném v malebném údolí obklopeném olivovými háji a mandloňovými háji. Tento exkluzivní rezidenční komplex nabízí apartmány s 1, 2 a 3 ložnicemi, všechny navržené tak, aby poskytovaly pohodlí, energetickou účinnost a úchvatný výhled na vinice Vinalopó. Tato klidná oblast, která se nachází v regionu Vinalopó Medio, je ideální pro ty, kteří hledají uvolněný středomořský životní styl se snadným přístupem k přírodě a základním službám. Vysoce kvalitní prvky pro moderní bydlení Každý apartmán je postaven z prvotřídních materiálů a povrchových úprav, které zajišťují styl i funkčnost: Prostorné interiéry s otevřeným půdorysem. Plně vybavené kuchyně s žulovými deskami. Luxusní koupelny s vestavěnými splachovacími nádržkami a vysoce kvalitním sanitárním vybavením. Energeticky úsporný design s aerotermálním ohřevem vody. Předinstalovaná klimatizace s potrubím pro celoroční pohodlí. Dvojitě zasklená hliníková okna s tepelnou izolací. Zesílené bezpečnostní vstupní dveře pro větší klid. Soukromá garáž v přízemí je v ceně. Pro větší pohodlí je k dispozici výtah. Na střeše jsou navíc instalovány solární panely pro zvýšení energetické účinnosti a snížení nákladů na energie. Výhodná poloha v Hondón de las Nieves Hondón de las Nieves je okouzlující španělská vesnice známá svou vinařstvím, tradiční kulturou a malebnou krajinou. Město se pyšní historickými budovami, místními trhy a přírodními turistickými stezkami, což z něj činí fantastické místo jak pro trvalé bydlení, tak pro rekreační pobyty. Tento nový developerský projekt se nachází v klidné, ale zároveň dobře dostupné oblasti s snadným přístupem k základním službám a klíčovým lokalitám: Letiště Alicante – 30 km (30 minut jízdy) Pláže Alicante – 35 km (35 minut jízdy) Elche – 20 km (20 minut jízdy) Přírodní park Crevillente – 10 km (15 minut jízdy) Golfová hřiště – 25 km (30 minut jízdy) Váš dokonalý domov v srdci alicanteského venkova Užijte si klid údolí Hondón a zároveň zůstaňte v blízkosti pulzujících měst Alicante a Elche. Ať už hledáte rekreační dům, investiční nemovitost nebo klidné místo k celoročnímu bydlení, tyto moderní apartmány jsou ideální volbou. Kontaktujte nás ještě dnes pro více informací nebo pro domluvení prohlídky!
- V blízkosti škol
- Počet parkovacích míst: 1
- Výtah
- Místo: Venkov
- Parkování - Místo
- Užitná plocha budovy: 48 m².
- Dvoulůžkové pokoje: 1
- Pláž: 37000 metrů
- Klimatizace: Předinstalovaná
- Terasa: 2 m²
