| Kód nemovitosti | CQ-00-30372 |
|---|---|
| Lokalita | Costa Blanca Jih |
| Typ | Apartmán |
| Stav | nové |
| Cena | €305,000 |
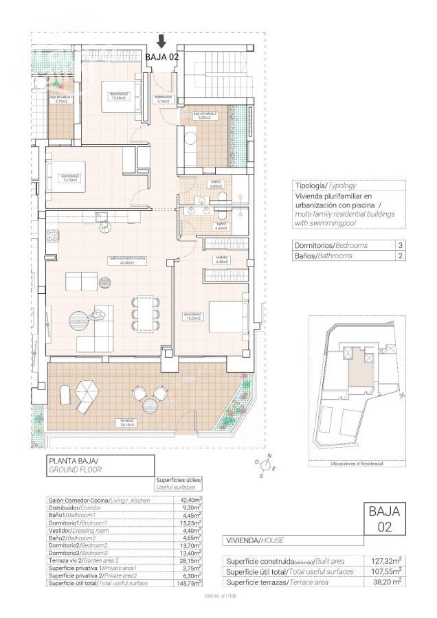
- Obytná plocha: 127 m2
- 3
- 2
- Bazén: ano
Popis nemovitosti
Exkluzivní novostavby apartmánů s výhledem na vinice v Hondón de las Nieves Moderní domy v jedinečném přírodním prostředí Objevte tento nový bytový komplex v Hondón de las Nieves, okouzlující vesnici zasazené do krásného údolí obklopeného olivovými a mandlovými háji. Tento komplex nabízí 15 exkluzivních domů se 2 a 3 ložnicemi, všechny navržené tak, aby nabízely maximální pohodlí, energetickou účinnost a úchvatný výhled na vinice Vinalopó. Tato klidná enkláva, která se nachází ve Vinalopó Medio, je ideální pro ty, kteří hledají uvolněný středomořský životní styl se snadným přístupem k přírodě a všem základním službám. Vysoce kvalitní prvky a moderní design Každý byt byl navržen s použitím nejkvalitnějších materiálů a funkčním uspořádáním a nabízí: Prostorné a otevřené obytné prostory, ideální pro moderní bydlení. Plně vybavené kuchyně s žulovými deskami. Špičkové koupelny s vestavěnými splachovacími nádržkami a vysoce kvalitní sanitární keramikou. Energetickou účinnost s aerotermálním systémem pro ohřev vody. Předinstalaci klimatizace s potrubím, která zaručuje pohodlí ve všech ročních obdobích. Hliníková okna s dvojitým zasklením, která zajišťují tepelnou a zvukovou izolaci. Zesílené bezpečnostní vstupní dveře pro klid. Parkovací místo a úložný prostor v suterénu jsou zahrnuty v ceně. Výtah v budově zajišťuje bezbariérovost a pohodlí. Solární panely na střeše pro zlepšení energetické účinnosti a snížení nákladů na údržbu. Kromě toho má rezidenční objekt společný bazén, ideální pro užívání si středomořského klimatu. Výhodná poloha v Hondón de las Nieves Hondón de las Nieves je město s bohatou vinařskou tradicí, proslulé svými stolními hrozny s označením původu Vinalopó. Oblast obklopená pohořím Sierra de Crevillente nabízí četné turistické stezky, přírodní oblasti a bohatou kulturní a historickou nabídku. Z vašeho nového domova budete mít rychlý přístup k hlavním zajímavostem v oblasti: Letiště Alicante - 30 km (30 minut jízdy autem). Pláže Alicante - 35 km (35 minut autem) Elche - 20 km (20 minut autem) Přírodní park Crevillente - 10 km (15 minut autem) Golfová hřiště - 25 km (30 minut autem) Ideální domov na Costa Blance Užijte si klid údolí Hondón, aniž byste se museli vzdát blízkosti Alicante a Elche. Ať už jako trvalé bydlení, rekreační dům nebo investiční nemovitost, tyto moderní byty jsou bezkonkurenční volbou. Kontaktujte nás ještě dnes pro více informací nebo pro domluvení prohlídky.
- Společný bazén
- V blízkosti škol
- Uzavřeno
- Počet parkovacích míst: 1
- Výtah
- Poloha: Venkov, Urbanizace
- Parkování - Místo
- Užitečná plocha budovy: 107 m².
- Dvoulůžkové pokoje: 3
- Pláž: 37000 metrů
- Klimatizace: Předinstalovaná
- Terasa: 38 m²
- Skladování / Trastero
