| Kód nemovitosti | CQ-00-47640 |
|---|---|
| Lokalita | Costa Blanca(Alicante) - přeprodej - starší nemovitosti |
| Typ | Dům |
| Stav | nové |
| Cena | €396,500 |
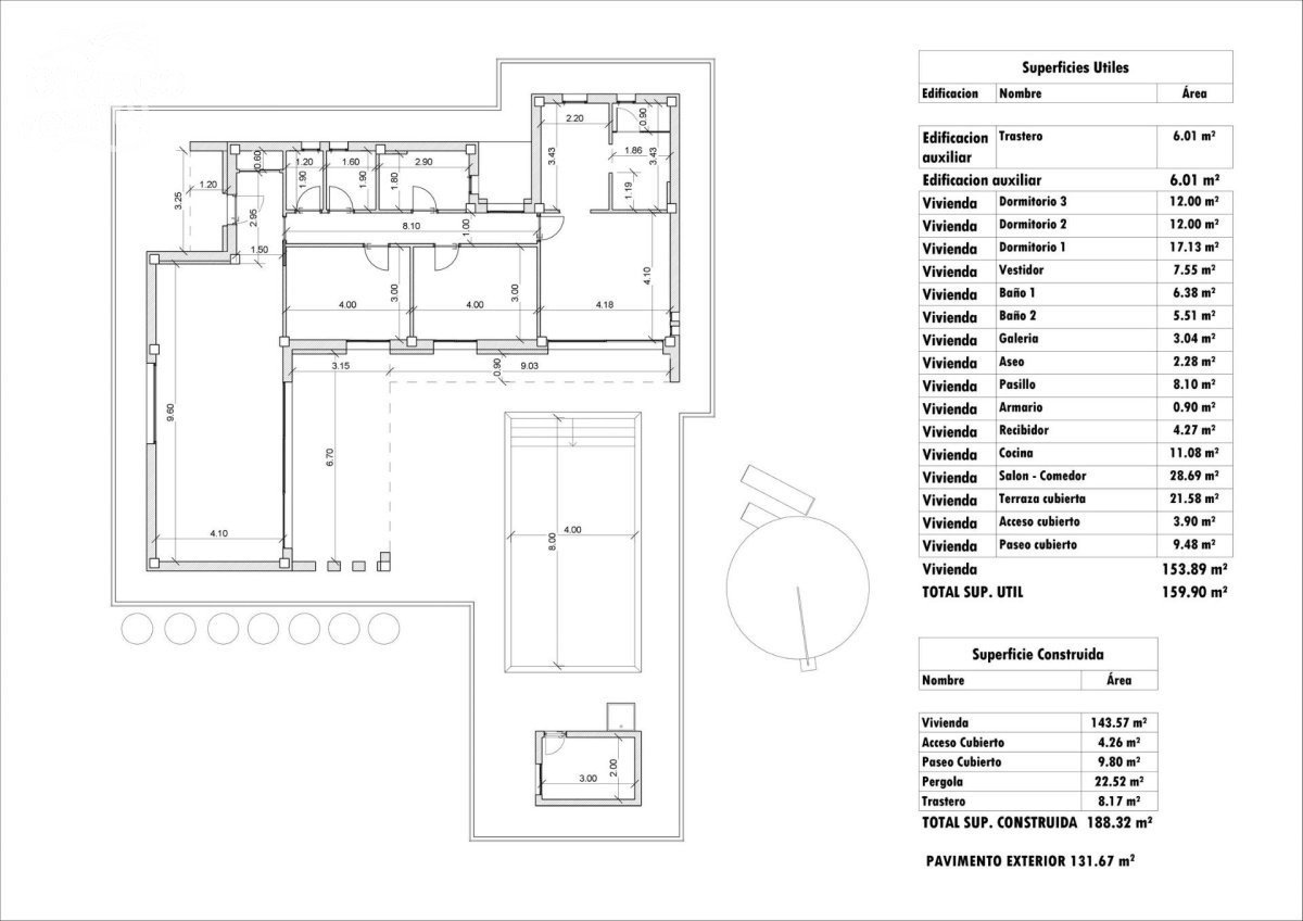
- Obytná plocha: 188 m2
- Pozemek: 13172 m2
- 3
- 3
- Bazén: ano
Popis nemovitosti
Nově postavené vily v obci Aspe. Nově postavené vily s několika modely na výběr, se 2, 3 nebo 4 ložnicemi, na jednom nebo dvou podlažích a postavené z desek nebo s konstrukcí: v závislosti na modelu a zvoleném pozemku bude vypočítána přesná cena. Všechny vily jsou postaveny na rustikálních pozemcích o rozloze přes 10 000 m2, z nichž přibližně 2 500 m2 bude oploceno. Vily mají otevřenou kuchyň s obývacím pokojem, vestavěné skříně, soukromý bazén, verandu, úložnou místnost a venkovní parkovací místo. K dispozici je několik pozemků na výběr. Cena je založena na pozemku v ceně 77 500 liber (pokud bude vybrán jiný pozemek, rozdíl bude doplacen nebo připsán dle ceny pozemku). Projekt svépomocí, dodání přibližně do 12 měsíců od udělení povolení. Pokud hledáte klidné prostředí, blízko typických španělských vesnic, daleko od turistických davů, obklopené horami, s velmi velkým pozemkem a asi 30 minut od moře, pak je to váš domov. Aspe je typická španělská vesnice se vším komfortem pro každodenní život, obklopená horami a s několika přírodními oblastmi v okolí, kde se můžete věnovat pěší turistice nebo horské cyklistice. Nachází se 25 km od pláže, 9 km od Elche a asi 20 km od letiště Alicante.
- Zahrada
- Soukromý bazén
- V blízkosti škol
- Uzavřeno
- Počet parkovacích míst: 1
- Poloha: Venkov, Hora
- Parkování - Místo
- Užitná plocha budovy: 159 m².
- Pláž: 25 000 metrů
- Dvoulůžkové pokoje: 3
- Klimatizace: Předinstalovaná
- Terasa: 36 m²
- Skladování / Trastero
