| Kód nemovitosti | CQ-00-62815 |
|---|---|
| Lokalita | Costa Blanca(Alicante) - přeprodej - starší nemovitosti |
| Typ | Dům |
| Stav | nové |
| Cena | €1,450,000 |
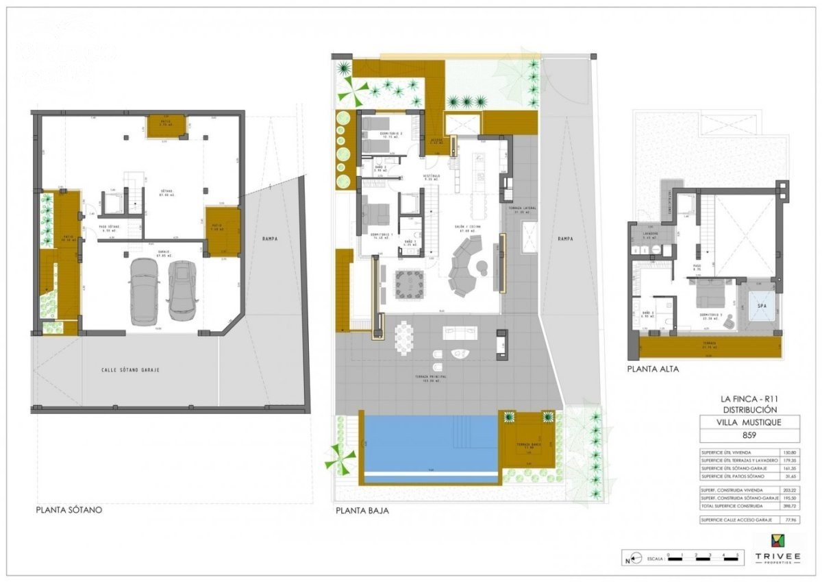
- Obytná plocha: 203 m2
- Pozemek: 461 m2
- 3
- 3
- Bazén: ano
Popis nemovitosti
NOVOSTAVBA LUXUSNÍ VILLY V PRVNÍ LINII NA GOLFOVÉM HŘIŠTĚ ALGORFA Novostavba golfové vily v první linii v golfovém resortu La Finca. Luxusní vila na 2 podlažích se 3 ložnicemi, 3 koupelnami, hlavní apartmá s šatnou, podlahovým vytápěním (v celém objektu), soukromou zahradou s nekonečným bazénem a relaxační zónou, systémem domácí automatizace, podzemní garáží. Golfový resort La Finca se nachází v obci Algorfa, v oblasti Vega Baja na řece Segura. Toto malé město se tradičně věnuje zemědělství, zejména pěstování artyčoků a citrusových plodů. Algorfa má infrastrukturu vysoce kvalitních služeb, které vám umožní pohodlný život. V blízkosti se nacházejí nádherné pláže Guardamar a Torrevieja, kde si můžete užívat teplé vody a opalovat se více než tři sta dní v roce. Kromě toho v těchto turistických městech najdete nákupní centra, restaurace a zábavní podniky. Letiště Alicante je vzdálené 40 minut jízdy autem a letiště Murcia 55 minut jízdy autem.
- Zahrada
- Grilování
- Soukromý bazén
- V blízkosti škol
- Uzavřeno
- Nemovitost v blízkosti golfového hřiště / golfového resortu
- Blízko obchodního centra
- Místo: Urbanizace
- Podzemní vestavba / Suterén
- Počet parkovacích míst: 2
- Pláž: 14000 metrů
- Užitná plocha budovy: 175 m².
- Dvoulůžkové pokoje: 3
- Terasa: 179 m²
- Parkování - Místo - Garáž - Dvojgaráž
