| Kód nemovitosti | CQ-00-33041 |
|---|---|
| Lokalita | Costa Blanca(Alicante) - přeprodej - starší nemovitosti |
| Typ | Dům |
| Stav | nové |
| Cena | €875,000 |
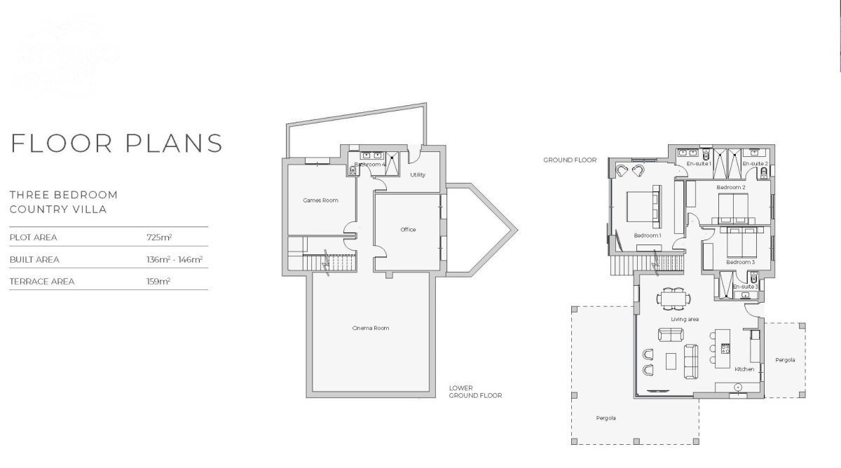
- Obytná plocha: 146 m2
- Pozemek: 725 m2
- 3
- 4
- Bazén: ano
Popis nemovitosti
ÚŽASNÉ NOVOSTAVBY VILY V RESORTU DESERT SPRINGS Tento krásný moderní a stylový komplex zaujímá záviděníhodnou polohu v resortu Desert Springs a nabízí výběr třípokojových vil s úchvatným výhledem na mistrovské hřiště Indiana a pohoří za ním. Oplocený přední dvůr, hluboké stinné verandy, soukromá upravená zahrada s přímým výhledem na golfové hřiště, individuální bazén, vestavěný gril a rozlehlé střešní terasy jsou jen některé z vnějších charakteristik nemovitostí. Moderní design a přirozené světlo, které vytvářejí celkový pocit prostoru, jsou vynikajícími charakteristikami sofistikovaných interiérů, které nabízejí stylové domy s moderním vzhledem. Mezi prvky patří prostorná vnitřní recepce, která se otevírá rovnou podlahou na kryté verandy a zahradu a nabízí tak více než 93 m2 kombinovaného vnitřního/vnějšího obytného a jídelního prostoru, navrženého tak, aby byl využíván jako jeden celek ve speciálně privilegovaném klimatu regionu. Hlavní ložnice s vlastní koupelnou má přímý přístup na rozlehlou verandu a k bazénu. K dispozici jsou další dvě ložnice, obě s vlastní koupelnou a šatnou. V rozlehlém suterénu se nachází herna, kino, technická místnost, kancelář a čtvrtá koupelna. Standardem jsou dvojitá okna, vysoce kvalitní kuchyňská linka, vestavěné bílé zboží a skříně v ložnicích a bezpečnostní prvky. Mechanický ventilační systém v suterénu a přízemí a fotovoltaické panely napojené na zásobník teplé vody s individuálně ovládanými klimatizačními jednotkami pro ohřev/chlazení v obývacím pokoji a ložnicích plně uspokojují všechny požadavky na regulaci teploty.
- Zahrada
- Soukromý bazén
- Uzavřeno
- Počet parkovacích míst: 1
- Nemovitost v blízkosti golfového hřiště / golfového resortu
- Pláž: 5000 metrů
- Poloha: Pobřežní, Urbanizace
- Užitná plocha budovy: 120 m².
- Parkování - Místo
- Dvoulůžkové pokoje: 3
- Klimatizace: Předinstalovaná
- Terasa: 159 m²
