| Kód nemovitosti | CQ-00-46300 |
|---|---|
| Lokalita | Costa Blanca(Alicante) - přeprodej - starší nemovitosti |
| Typ | Dům |
| Stav | nové |
| Cena | €2,450,000 |
- Obytná plocha: 222 m2
- Pozemek: 1149 m2
- 3
- 4
- Bazén: ano
Popis nemovitosti
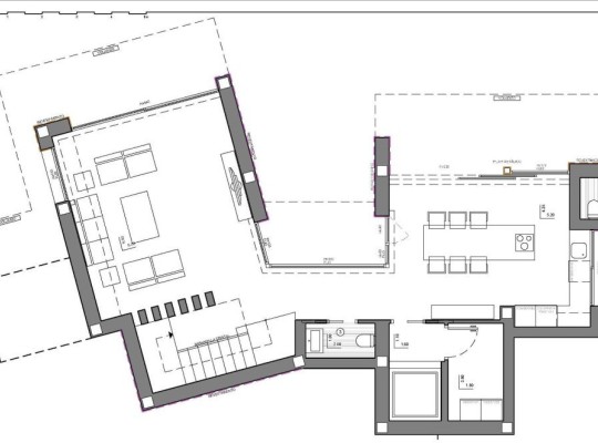
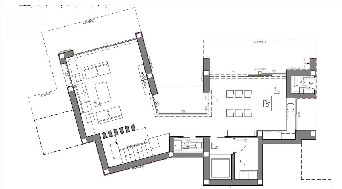
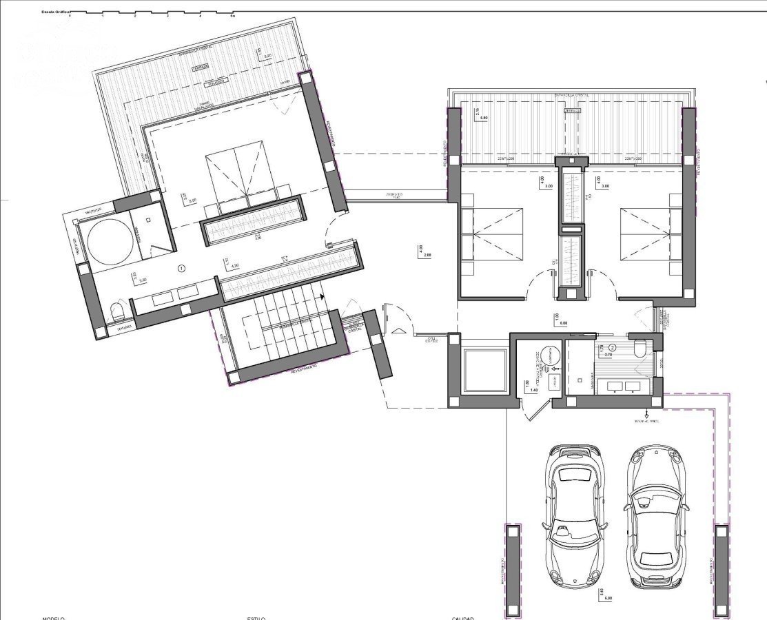
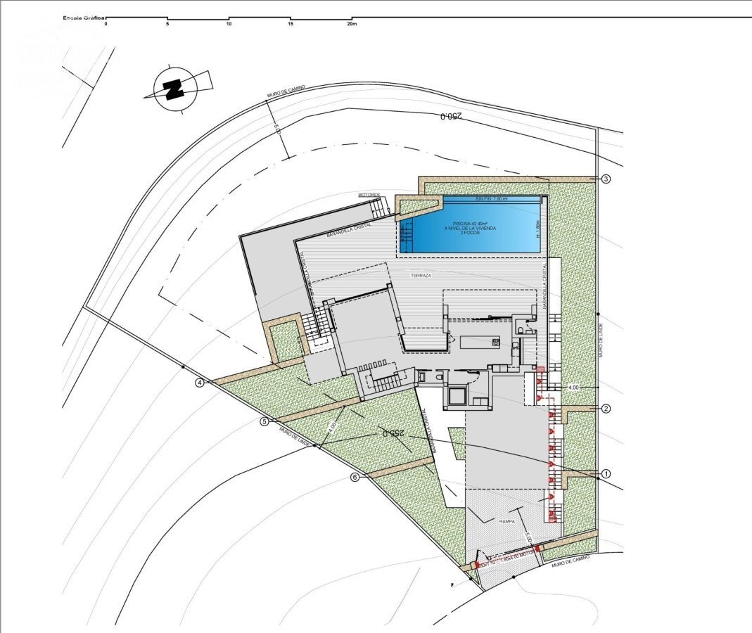
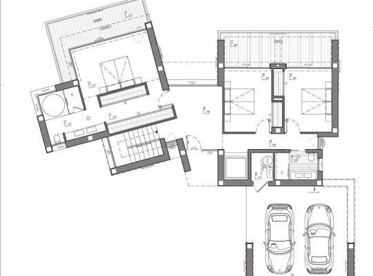
NOVOSTAVBA LUXUSNÍ VILLY V CUMBRE DEL SOL V srdci rezidenční čtvrti Cumbre del Sol se nachází tato luxusní vila se soukromým bazénem. Novostavba moderního designu vily elegantně a funkčním způsobem kombinuje moderní a středomořskou architekturu. Na fasádě, charakterizované velkými geometrickými tvary založenými na diagonálních liniích, dominuje bílá barva a použití přírodního kamene jí umožňuje splynout s okolím. Její obrovská zahrada ve středomořském stylu, korunovaná bazénem s nekonečným efektem, který se mísí s modří moře, v kombinaci s mírným klimatem severní Costa Blancy vás zve k dlouhým dnům na čerstvém vzduchu téměř po celý rok. Její poloha vám umožní vychutnat si klidné a pohodlné prostředí. Vila se rozkládá na 3 podlažích. Do vily se vstupuje z horního patra, kde je kryté parkování pro dvě vozidla a výtah, který propojuje celý dům. V tomto patře se nachází „noční zóna“ složená ze dvou ložnic, apartmá s koupelnou, šatny, soukromé terasy a sdílené koupelny. Všechny ložnice mají přístup na terasu, odkud si můžete vychutnat jeden z nejlepších výhledů na moře na Costa Blance. Probuzení s výhledem na slunce vycházející na obzoru Středozemního moře je jedním z mnoha luxusů, které vám tato vila nabízí. V přízemí se nachází obývací prostor, kde jsou hlavní atrakcí rozlehlé otevřené prostory a přirozené světlo a kde se hranice mezi interiérem a exteriérem prolíná díky velkým proskleným stěnám, které umožňují přístup do zahrady a k bazénu. Kuchyň je vybavena moderními elektrickými spotřebiči špičkových značek, má centrální ostrůvek a prostornou lavici s dostatkem úložného prostoru. Venkovní prostor má krytou plochu, kde můžete pořádat ty nejlepší společenské akce a být chráněni před sluncem. Suterén této vily nám umožňuje přestavět ji na 4pokojový dům nebo si tento prostor přizpůsobit dle libosti (tělocvična, kancelář, herna…). Vila má podlahové vytápění, klimatizaci s regulací teploty a chlazení, systém domácí automatizace ECODAN… Rezidenční komplex má vlastní supermarket, bary a restaurace, sportovní areály a dokonce i optické připojení, což z Cumbre del Sol dělá ideální místo pro práci z domova. Všechny tyto vlastnosti dělají z vily ideální volbu pro dlouhodobé pobyty s přáteli a rodinou nebo i jako hlavní bydlení.
- Zahrada
- Soukromý bazén
- V blízkosti škol
- Uzavřeno
- Pláž: 1000 metrů
- Blízko obchodního centra
- Poloha: Pobřežní, Urbanizace
- Výtah
- Podzemní vestavba / Suterén
- Počet parkovacích míst: 2
- Parkování - Místo
- Užitná plocha budovy: 177 m².
- Dvoulůžkové pokoje: 3
- Výhled: Moře
- Klimatizace: Předinstalovaná
- Terasa: 299 m²
