| Kód nemovitosti | CQ-00-70712 |
|---|---|
| Lokalita | Costa Blanca(Alicante) - přeprodej - starší nemovitosti |
| Typ | Apartmán |
| Stav | nové |
| Cena | €620,000 |
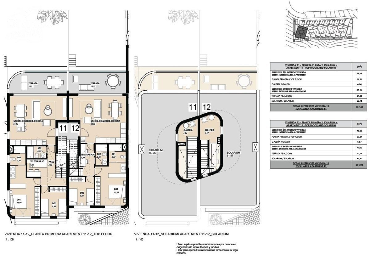
- Obytná plocha: 151 m2
- 2
- 2
- Bazén: ano
Popis nemovitosti
Novostavby bungalovů s výhledem na moře v La Mata, Torrevieja Výhodná lokalita 300 metrů od pláže Tento exkluzivní nový developerský projekt se nachází v La Mata, Torrevieja, jedné z nejvyhledávanějších oblastí Costa Blanca. Pouhých 300 metrů od pláže nabízí tento developerský projekt výjimečné přírodní prostředí s panoramatickým výhledem na moře a snadný přístup ke všem základním zařízením. La Mata je pulzující oblast se zvláštním kouzlem, obklopená promenádami, restauracemi, kavárnami a supermarkety, což z ní činí ideální destinaci jak pro celoroční bydlení, tak pro užívání si druhého domova u moře. Moderní design a energetická účinnost Tento developerský projekt vyniká svou elegantní středomořskou architekturou s avantgardním nádechem. Navržený ve standardu Passivhaus zaručuje udržitelnou výstavbu, která poskytuje maximální tepelný komfort a energetickou účinnost, snižuje spotřebu a dopad na životní prostředí. Domy se vyznačují vysoce kvalitními povrchovými úpravami, prostornými pokoji a dostatkem přirozeného světla, čímž dosahují dokonalé rovnováhy mezi designem a funkčností. Možnosti bydlení pro všechny životní styly Byty v přízemí s velkou soukromou zahradou s výhledem na moře a dostatkem prostoru pro soukromý bazén. Zahrnují také část suterénu s možností rozšíření o další ložnice. Byty v nejvyšším patře s velkým balkonem, soukromým soláriem a nádherným výhledem na moře, ideální pro užívání si středomořského slunce. Exkluzivní společné prostory Tento komplex nabízí prostory navržené pro pohodlí a relaxaci: Společný nekonečný bazén, ideální pro ochlazení s panoramatickým výhledem. Podzemní parkovací místo je zahrnuto v ceně každé nemovitosti. Vzdálenost k zajímavým místům Pláž La Mata - 300 m. Centrum města Torrevieja - 6 km. Přírodní park La Mata-Torrevieja - 2 km. Golfové hřiště La Marquesa - 15 km. Letiště Alicante - 40 km (cca 40 min). Letiště Murcia - 65 km (cca 1 hodina). Váš domov na Costa Blance na vás čeká Pokud hledáte luxusní byt s výhledem na moře, na privilegovaném místě a se všemi vymoženostmi, je tento rezidenční komplex tou nejlepší volbou. Kontaktujte nás ještě dnes pro více informací a pro domluvení prohlídky.
- Společný bazén
- V blízkosti škol
- Uzavřeno
- Počet parkovacích míst: 1
- Blízko autobusové trasy
- Blízko obchodního centra
- Poloha: Pobřežní, Urbanizace
- Podzemní vestavba / Suterén
- Užitná plocha budovy: 74 m².
- Pláž: 300 metrů
- Parkování - Místo
- Dvoulůžkové pokoje: 2
- Výhled: Moře
- Solárium: Ano
- Klimatizace: Předinstalovaná
- Terasa: 76 m²
