| Kód nemovitosti | CQ-00-60495 |
|---|---|
| Lokalita | Costa Blanca(Alicante) - přeprodej - starší nemovitosti |
| Typ | Dům |
| Stav | nové |
| Cena | €549,900 |
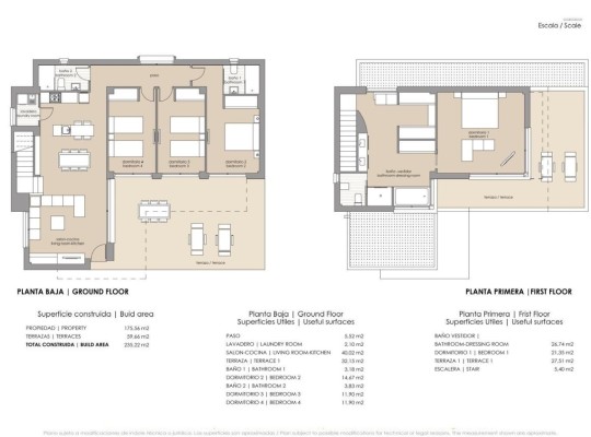
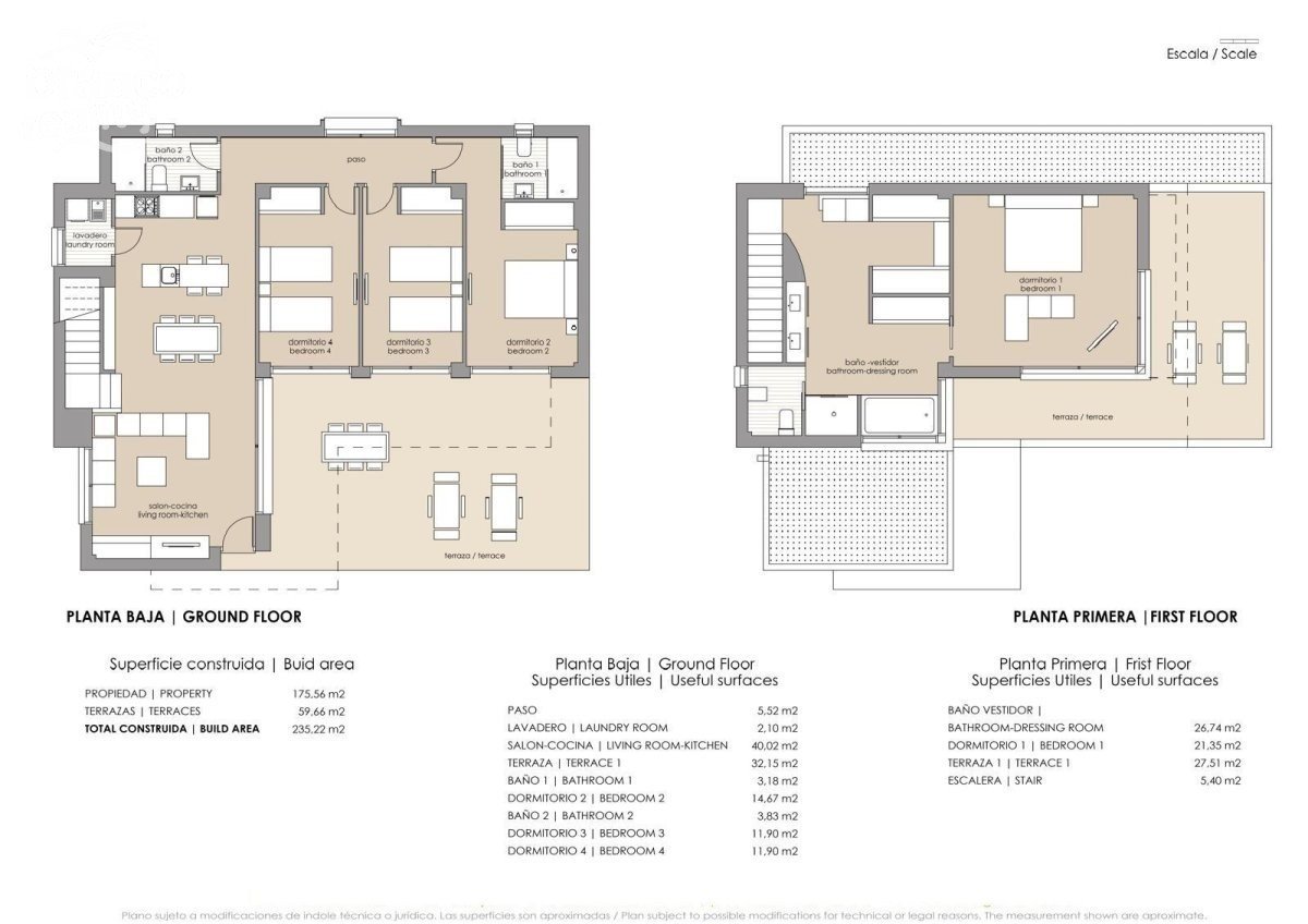
- Obytná plocha: 175 m2
- Pozemek: 305 m2
- 4
- 3
- Bazén: ano
Popis nemovitosti
Novostavby vily v golfovém resortu Vistabella – Orihuela Zažijte moderní středomořské bydlení v srdci Costa Blanca s těmito úžasnými novostavbami vilami v golfovém resortu Vistabella. Tento exkluzivní komplex, který se nachází mezi San Miguel de Salinas a Los Montesinos v obci Orihuela, nabízí luxus, pohodlí a bezkonkurenční polohu pro golfové nadšence i ty, kteří hledají atraktivní životní styl. Dva odlišné modely vil Kupující si mohou vybrat ze dvou elegantních designů: Jednopodlažní vily se 3 ložnicemi, 2 koupelnami a střešním soláriem. Dvoupatrové vily se 4 ložnicemi, 3 koupelnami a terasou se soláriem v prvním patře. Oba modely se nacházejí na pozemcích o rozloze přibližně 300 m² a zahrnují soukromý bazén a parkování na místě. Prémiová kvalita a moderní pohodlí Každá vila je vybavena luxusními povrchy, včetně plně instalované klimatizace, vybavených kuchyní se spotřebiči, venkovního osvětlení, elektrických rolet a elegantních sprchových zástěn v koupelnách. Kombinace stylu a funkčnosti zajišťuje krásný i praktický domov. Exkluzivní golfový resort Lifestyle Golf Resort Vistabella je uzavřený komplex s 18jamkovým golfovým hřištěm, kurty na paddle tenis, bowlingovou dráhou, supermarketem a širokou škálou barů a restaurací. Budoucí modernizace povýší resort na skutečnou 5hvězdičkovou destinaci s plánovanými přístavbami, jako je šampaňský bar, sushi bar, lázeňský hotel, umělá pláž, tenisový kurt, fotbalové hřiště a gurmánský bar. Prvotřídní poloha na Costa Blance Resort nabízí vynikající přístup k nejlepším plážím, golfovým hřištím a službám v regionu. Vzdálenosti od klíčových zajímavých míst zahrnují: Pláž La Mata: 18 km Pláž Guardamar del Segura: 20 km Torrevieja: 15 km Letiště Alicante: 55 km Letiště Murcia: 68 km Golf Villamartín: 12 km Golfový a country klub Las Colinas: 14 km Váš vysněný domov čeká Ať už jako trvalé bydlení, rekreační dům nebo investici k pronájmu, tyto nově postavené vily v golfovém resortu Vistabella nabízejí výjimečnou hodnotu v jedné z nejvyhledávanějších pobřežních oblastí Španělska. Kontaktujte nás ještě dnes a domluvte si prohlídku a zajistěte si své místo v této luxusní golfové komunitě.
- Soukromý bazén
- V blízkosti škol
- Uzavřeno
- Počet parkovacích míst: 1
- Nemovitost v blízkosti golfového hřiště / golfového resortu
- Blízko obchodního centra
- Místo: Urbanizace
- Užitná plocha budovy: 120 m².
- Pláž: 14000 metrů
- Parkování - Místo
- Dvoulůžkové pokoje: 4
- Solárium: Ano
- Terasa: 59 m²
