| Kód nemovitosti | IS-VGN |
|---|---|
| Typ | Apartmán |
| Stav | nové |
| Zařazení | Pobřeží východně od Malagy |
| Cena | €320,650 |
- Zařízené: částečně
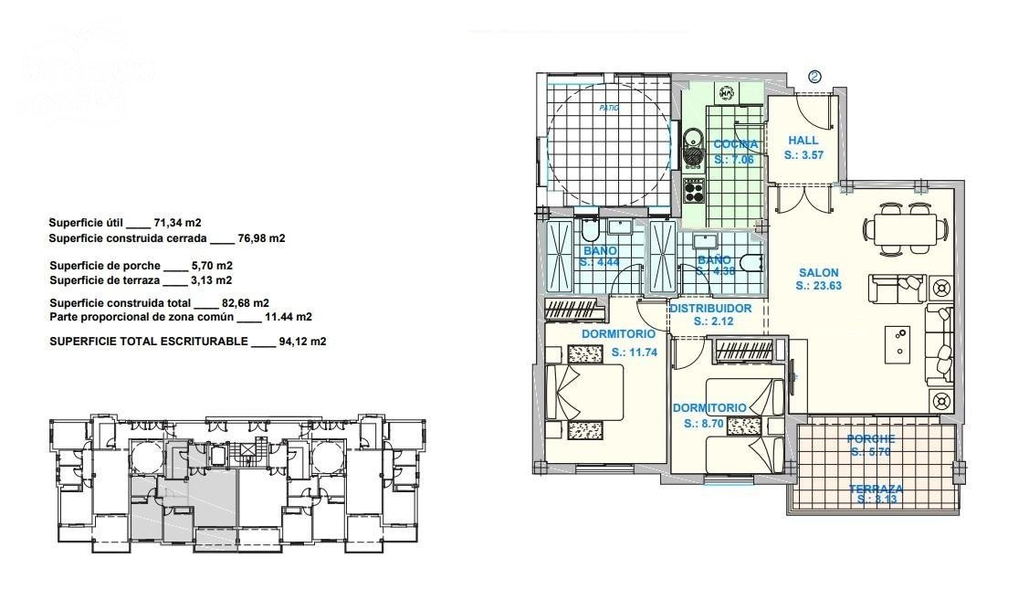
- 2
- 2
- Bazén: ano
- Výhled na moře: ano
- Vzdálenost moře: 0.50 km
Popis nemovitosti
Představujeme Vám jedinečný a komorní developerský projekt pouhých 10 exkluzivních bytů v jedné z nejvyhledávanějších lokalit Východní Costa del Sol – na prestižní pláži El Peñoncillo v Torroxu. Zde se klid Středomoří a špičková kvalita bydlení snoubí s dechberoucí jižní orientací a nekonečnými výhledy na moře.
Lokalita: Torrox – Místo s "Nejlepším Klimatem v Evropě"
Torrox se pyšní titulem místa s „nejlepším klimatem v Evropě“, což zaručuje 320 dní slunce a příjemné teploty po celý rok. Projekt se nachází v rezidenční oblasti El Peñoncillo, která nabízí jedinečnou kombinaci klidného života a výborné dostupnosti:
Dochozí vzdálenost na pláž - Projekt je situován jen několik kroků od písečné pláže, kde si můžete užívat šumění vln jako kulisu Vašeho dne.
Komfort na dosah: V blízkosti naleznete restaurace, oblíbené chiringuitos, supermarket a veškerou občanskou vybavenost.
Vynikající konektivita: Centrum oblíbeného města Nerja je vzdáleno jen pár minut jízdy autem. Díky rychlému napojení na dálnici A-7 je zajištěno skvělé spojení s Málagou a Granadou.
Dostupnost z letiště: Mezinárodní letiště Málaga (AGP), je dostupné přibližně za 45–50 minut jízdy autem.
Je to více než jen bydlení; je to životní styl plný slunce, pláže a kvality života v jednom z nejautentičtějších koutů Andalusie.
Tento komorní development je navržen tak, aby poskytoval maximální soukromí a komfort. Každá z 10 jednotek těží z optimální jižní orientace, která zaručuje celodenní proslunění a prosvětlené interiéry.
Společný bazén ideální pro relaxaci a osvěžení s výhledem do okolní krajiny.
Ke každému parkovacímu místu náleží předinstalace pro elektrickou nabíječku, což podtrhuje moderní a ekologický přístup.
Při výstavbě je kladen důraz na špičkové materiály, energetickou efektivitu a moderní design:
Konstrukce a Izolace: Železobetonová konstrukce a špičkové tepelné a akustické izolace dle norem CTE zaručují tiché a úsporné bydlení.
Podlahy: V interiéru velkoformátová porcelánová dlažba, na terasách pak protiskluzová porcelánová dlažba třídy C-3.
Okna a Dveře: Okna a balkonové dveře z texturovaného hliníku v barvě antracitově šedé. Ložnice jsou vybaveny žaluziemi. Interiérové dveře a čela skříní jsou elegantně lakované v bílé barvě.
Chlazení a Teplá Voda: Efektivní systém aerotermie zajišťuje ohřev teplé vody a předinstalaci klimatizace (Split jednotky) v obývacím pokoji a ložnicích, což výrazně snižuje provozní náklady.
Koupelny: Vysoce kvalitní chromové armatury, zavěšená umyvadla s nábytkovou skříňkou a pryskyřicové sprchové kouty s prosklenou zástěnou.
Nenechte si ujít tuto investiční příležitost
Tyto luxusní byty v Torroxu představují ideální volbu jak pro trvalé bydlení, tak pro skvělou investici na Costa del Sol. Jejich exkluzivita, kvalita provedení a prémiová poloha zaručují vysokou poptávku a potenciál růstu.
Kontaktujte nás ještě dnes a vyžádejte si podrobnou dokumentaci, aktuální ceník a zjistěte dostupnost. Staňte se jedním z deseti šťastných majitelů, kteří budou žít svůj španělský sen v El Peñoncillo.
PŘEDÁNÍ KONEC 2028
CENY OD 320.650€ - 2 ložnice
