| Reality code | RD-N7628 |
|---|---|
| Type | House, detached |
| Condition | new |
| Location | Finestrat (Campana Garden), Alicante |
| Category | Costa Blanca (Alicante) - new-build |
| Price | €760,000 |
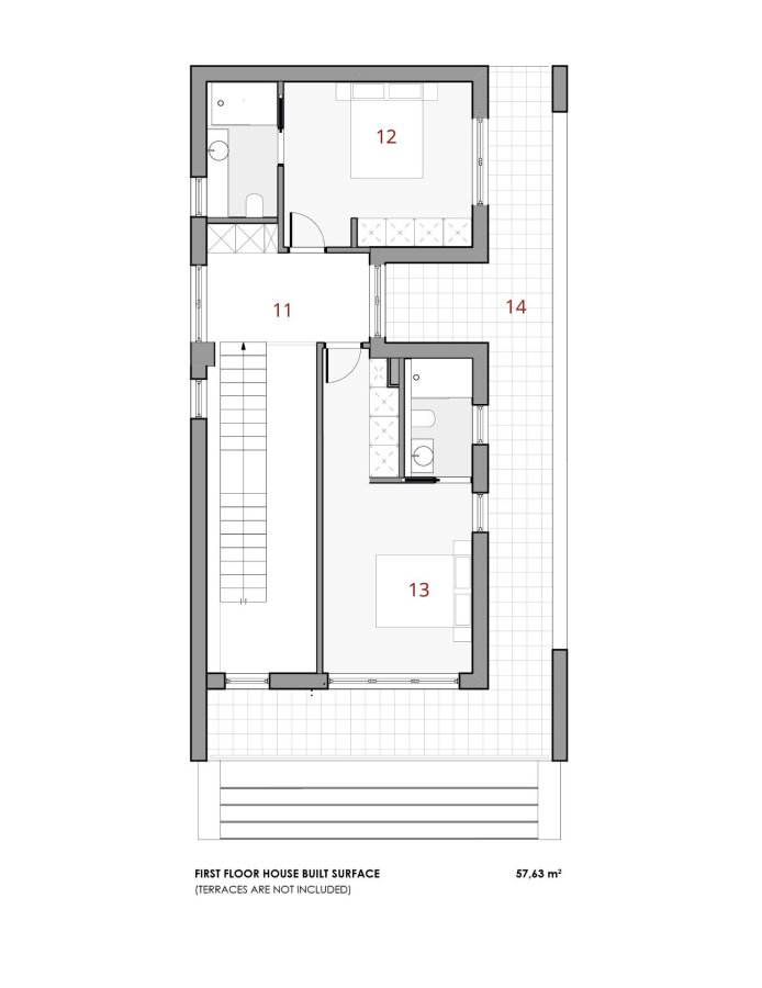
- Built: 198 m2
- Plot: 564 m2
- 3
- 3
- Pool: yes
Reality description
NEW BUILD VILLAS IN FINESTRAT New Build Modern villas in Finestrat. Villas with3 bedrooms and 3 bathrooms, open plan kitchen with lounge area, terrace with magnificent views over Benidorm, private garden with swimming pool and parking space. It is conceived as a fully walkable space with interior and exterior pathways that provide independent access to each floor. This design offers various perspectives of the architectural complex and its surroundings, with the sea and Sierra Cortina serving as a picturesque backdrop. The main entrance to the villa is located at the lower part of the plot, featuring ample parking for two vehicles. A water feature with lounge chairs introduces you to the ground floor, characterized by wide walls adorned with masonry. Extending seamlessly from the living room is a terrace, made possible by a large folding window. Wooden shutters on masonry walls provide a partially covered outdoor area for added comfort. The pool, with its aquamarine hues and gresite lining, sits adjacent to a pavement area crafted from non-slip porcelain tile with a wood-like appearance. This space also includes a barbecue area that can be customized to suit the user’s needs, with access from a paved zone through the natural terrain. Finestrat located in the Marina Baixa region of the Costa Blanca, close to neighbouring Benidorm and about 40 kilometres from the city of Alicante and the international airport. The village is situated on the mountainside of Puig Campana and offers beautiful views of the mountains, the coast and the Mediterranean Sea. Benidorm is just a five-minute drive from the properties and offers all the services you would need including shops, bars, restaurants, supermarkets, banks, pharmacies and several private international schools.
- Private Pool
- Garden
- Gated
- Terrace: 60 Msq.
- Parking - Space
- Number of Parking Spaces: 2
- Beach: 3000 Meters
- Views: Sea
- Near Schools
- Near Commercial Center
- Location: Coastal
- Useable Build Space: 138 Msq.
- Air Conditioning: Pre-Installed
- Double Bedrooms: 3
